Au cœur de Sfax, The Z Hôtel s’affirme comme une œuvre d’équilibre : entre rigueur urbaine et douceur méditerranéenne, entre fonctionnalité et émotion. Signé par l’architecte Hela Zouari, ce projet incarne une vision raffinée de l’hospitalité contemporaine — celle d’une architecture qui s’ancre dans son territoire tout en s’ouvrant au monde. Rencontre avec une architecte qui conjugue modernité, identité et sens du détail.
Archibat | Pouvez-vous nous présenter le contexte de ce projet familial, le concept du Z Hôtel et ce qui a guidé votre démarche architecturale dès le départ ?
Hela Zouari | The Z Hôtel est né d’un désir profond : offrir à Sfax un lieu où modernité et âme méditerranéenne cohabitent naturellement. C’est avant tout une aventure familiale, portée par l’envie de créer un établissement à taille humaine, loin des grands hôtels impersonnels, dans lequel toutes les générations puissent se reconnaître. The Z Hôtel est ainsi le premier concept de boutique-hôtel de la ville. Avec ArtStudio, nous avons voulu concilier modernité, intimité et identité locale, en imaginant un espace qui reflète à la fois la rigueur sfaxienne et la chaleur méditerranéenne.
The Z Hôtel s’inscrit dans un contexte urbain particulier, au cœur de Sfax. Comment avez-vous articulé votre projet avec l’identité de la ville et son tissu architectural ?
H. Z. | Sfax possède une architecture à la fois rationnelle et sensible. Nous avons voulu traduire cette dualité à travers des lignes pures, des matériaux locaux retravaillés et une lumière omniprésente, véritable fil conducteur du projet. Le bâtiment s’inscrit dans son environnement tout en affirmant une écriture contemporaine respectueuse du génie du lieu.
La modernité du bâtiment dialogue avec une certaine mémoire locale. Quels éléments évoquent cette continuité ?
H. Z. | Nous avons travaillé sur des détails subtils, des textures et des proportions inspirées de notre culture architecturale. Cette approche permet de faire émerger une modernité ancrée, respectueuse de l’esprit du lieu mais tournée vers l’avenir.
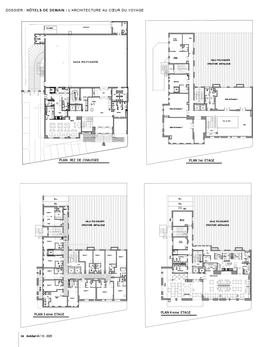
L’un des points forts du projet est la qualité des espaces intérieurs et de la lumière. Quelles ont été vos intentions en matière d’ambiance, de matériaux et de parcours sensoriel ?
H. Z. | Nous avons souhaité redéfinir la relation entre le client et l’espace. L’hôtellerie ne se résume plus à une chambre confortable : c’est une expérience émotionnelle et sensorielle. Le design intérieur du Z Hôtel traduit cette vision d’une hospitalité plus intime, où chaque espace raconte une histoire et invite à la détente. La lumière, la fluidité des circulations et la noblesse des matières participent à créer une atmosphère apaisante et élégante.
Comment la dimension écologique a-t-elle été intégrée dans la conception du Z Hôtel ?
H. Z. | Elle a guidé de nombreuses décisions. Nous avons privilégié l’orientation, la ventilation naturelle, le choix raisonné des matériaux et la gestion optimale de l’énergie. Pour nous, la durabilité n’est pas seulement une question technique : c’est aussi une question d’éthique et d’esthétique.
Peut-on dire que ce projet représente un modèle d’hospitalité durable pour la Tunisie ?
H. Z. | Nous l’espérons. The Z Hôtel illustre la possibilité d’un tourisme responsable, ancré dans le territoire et respectueux de ses ressources, tout en restant porteur d’innovation et de confort.
Quelle place occupe ce projet dans votre parcours personnel et professionnel ?
H. Z. | C’est un projet particulièrement cher à mon cœur, car il incarne à la fois mes convictions d’architecte et mon attachement à ma ville. Il symbolise une forme d’équilibre entre exigence, émotion et identité.
Si vous deviez résumer The Z Hôtel en trois mots ?
H. Z. | Design, authenticité, émotion.
Année d'ouverture janvier 2025
Surface couverte : 3816 m2
Maître d'ouvrage : Société immobilière Les Pyramides
Architecte : Hela Zouari Daoued - Agence Artstudio
Architectes collaborateurs : Fourati Abdelmajid - Fourati Refaat
Décoration : Artstudio collaboratrices Mariem Bouassida Fedia Kallel
Ingénieur de Structure : Chiheb Besbes
Ingénieur de Fluides : Nabil Aloulou
Ingénieur d'électricité : Maher Zouaoui
Pilotage : Artstudio en collaboration avec Mohamed Daoud
Bureau de contrôle : Assistas
Entreprise Génie civil : Mounir Kabadou
Entreprise Electricite : Oussama Msekni GLOBELEC
Entreprise PLomberie : Khaled dabbech et Gadour Jribi
Entreprise Climatisation : Laadhar Malek
Entreprise de Placoplatre et staff mécanique : Sorap - Houssem Jemal - Staff Plafond : Ridha Yousfi
Entreprises : KAMAR ALU représent Rayners à Sfax - Telesys - Sanibains - CBM - Quattro - Agencement : MBA DECO - Bahri Rideaux
Mitsubishi Climatisation - Équipement Cuisine : LMH / BEH équipement hôtelier - Revêtements ABK ceramiche Arco - Ameublement Roche Bobois - Interbois Ambiance - Archipel - Home Square - Garden Square -The City - La Villa - Lustres :
Kartel - Elis ( spoterie) - Literie Dorelan - Linge lit et Linge de bain FLORIA - Moquette : Société Arc en Ciel
Propos recueillis par Archibat – Photos : Pierre Gassin

- Adresse : Route Menzel Chaker KM1, Rue Abou Baker Esseddik 3000, Sfax.
- FB : thezhotelsfax
- Web : www. thezhotelsfax.com
Article paru dans Archibat n°65 – Octobre 2025, vous pouvez le commander ou vous abonner en ligne : https://archibat.info/shop/



















